方案展示
設計說明
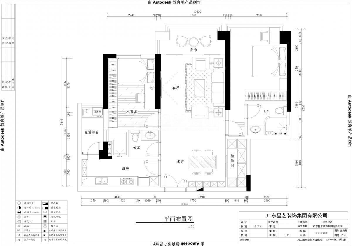
本案原陽臺比較大,餐廳也大,顯得客廳過小,而且客廳餐廳不規整。布局上我把餐廳的凹位利用起來做成一個鞋帽間,小戶型能做出別墅的感覺;陽臺往外擴,再配合房間、護墻板把客廳放大
[展開]-
星藝設計師的其它設計案例
-
簡歐風格的其它設計案例
關注我們
分享到
微信

立即預約
在線咨詢
在線客服
公安部備案號 44010602004978號